P1050587.jpg

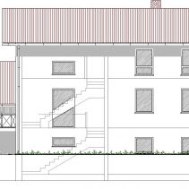
Neubau eines EFH (1) in Steinbrücken

Dieses Einfamilienhaus war eines unserer ersten Häuser in Steinbrücken. Aufgrund der Breite des Flurstückes, musste die Gesamtbreite des Gebäudes entsprechend optimiert werden. Unsere Leistungen: Gebäudeplanung und Tragwerksplanung, EnEV-Nachweis

Ausführungszeitraum: 2006 - 2007
Auftraggeber: Privat
Gesamtinvestition: 250.000 EUR