
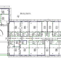
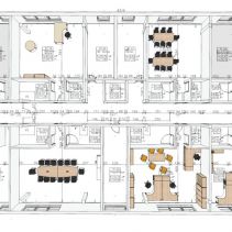
Umbau EC BIC Nordhausen
Für die SGN betreuten wir den Umbau Ihrer Büroetage hin zu einem modernen Bürotrakt.
Leistungen: Planung, Ausschreibung, Bauleitung
Ausführungszeitraum: 2018
Auftraggeber: Service Gesellschaft des LK Nordhausen mbH
Gesamtinvestition: -/-
Auftraggeber: Service Gesellschaft des LK Nordhausen mbH
Gesamtinvestition: -/-













zu Projekten | Startseite

