
Neubau eines Einfamilienhauses in Windehausen 2
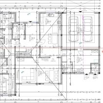
Eine neues Heim für eine junge Familie - Dieser Neubau wurde zusätzlich mit einer Doppelgarage geplant. Das Dachgeschoss bietet sich zudem zum Ausbau an.
Leistungen: Gebäudeplanung, Tragwerksplanung, Bauleitung Rohbauarbeiten
Ausführungszeitraum: 2019-2020
Auftraggeber: Privat
Gesamtinvestition: 350.000 EUR
Auftraggeber: Privat
Gesamtinvestition: 350.000 EUR



zu Projekten | Startseite