
Neubau Spülgutzwischenlager Halle-Süd
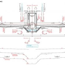
Die Hallesche Wasser und Abwasser GmbH beauftragte den Bau eines Spülgutzwischenlagers in Halle-Süd. Der Stahlbetontrog hatte ein Fassungsvermögen von ca. 400 m³, war ca. 13 m breit und 30 m lang. Das Bauwerk ist ca. 1,20 m unterhalb der OKG angeordnet. Der eingebrachte Beton unterlag der Überwachungsklasse II (ÜK II).
Das Gesamtvorhaben (Pumpstationen, Leitungen, ELT...) wurde in Zusammenarbeit mit dem Büro IBW GmbH (Halle) durchgeführt. Unsere Leistungen waren: Genehmigungs- und Ausführungsplanung Stahlbetontrog, Ausschreibung der Leistungen.
Ausführungszeitraum: 2007
Auftraggeber: HWA Hallesche Wasser und Abwasser
Gesamtinvestition: -/-
Auftraggeber: HWA Hallesche Wasser und Abwasser
Gesamtinvestition: -/-






zu Projekten | Startseite

