
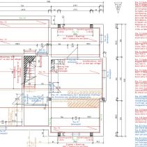
Tragwerksplanung für ein EFH in Deutsch-Evern
Bei diesem Vorhaben wurden wir mit der Ausführungsplanung (Tragwerksplanung) für ein 2-geschossigen Einfamilienhaus-Neubau beauftragt
Ausführungszeitraum: 2011
Auftraggeber: Privat
Gesamtinvestition: -/-
Auftraggeber: Privat
Gesamtinvestition: -/-


zu Projekten | Startseite

